COMMUNITY HOUSING

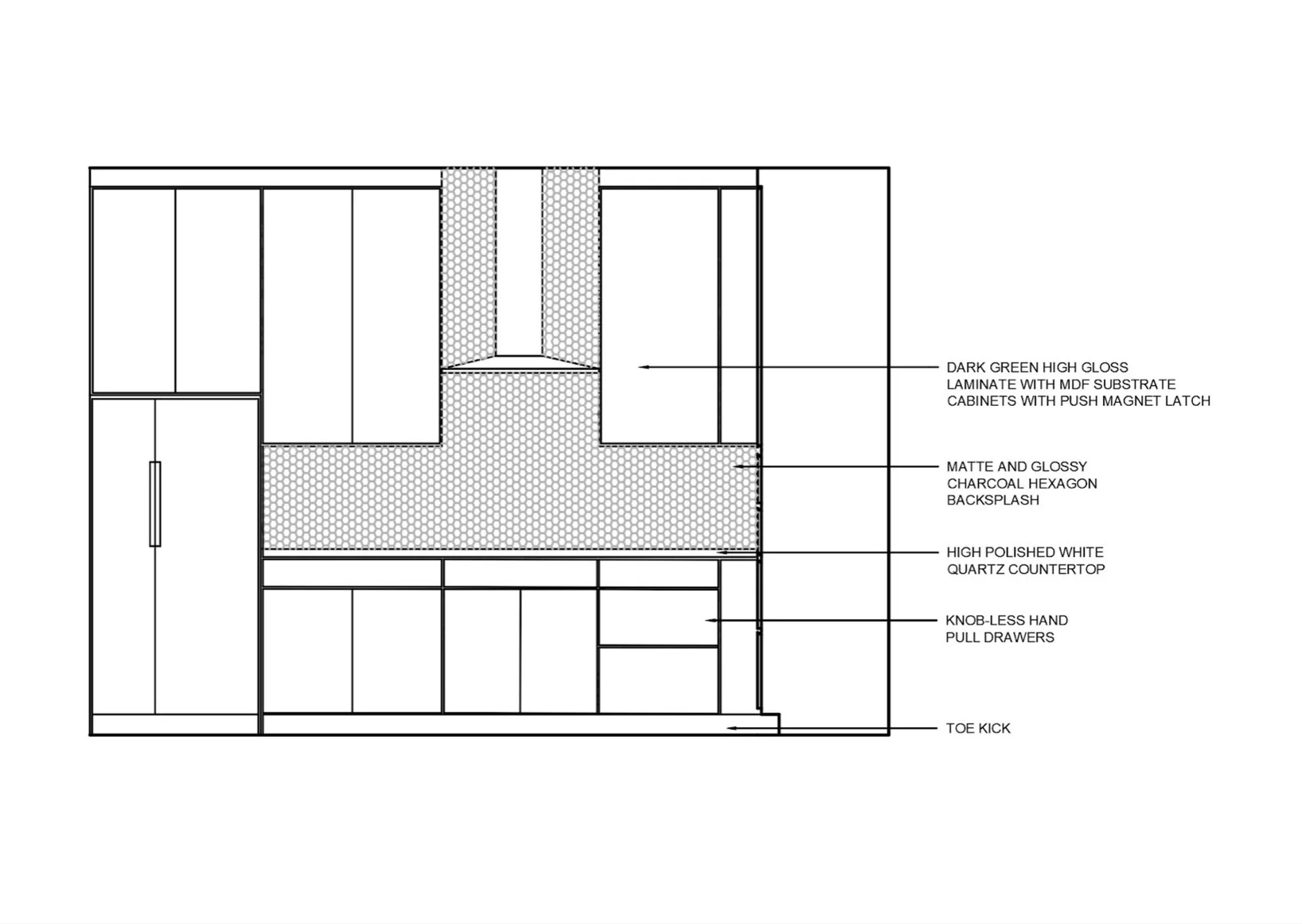
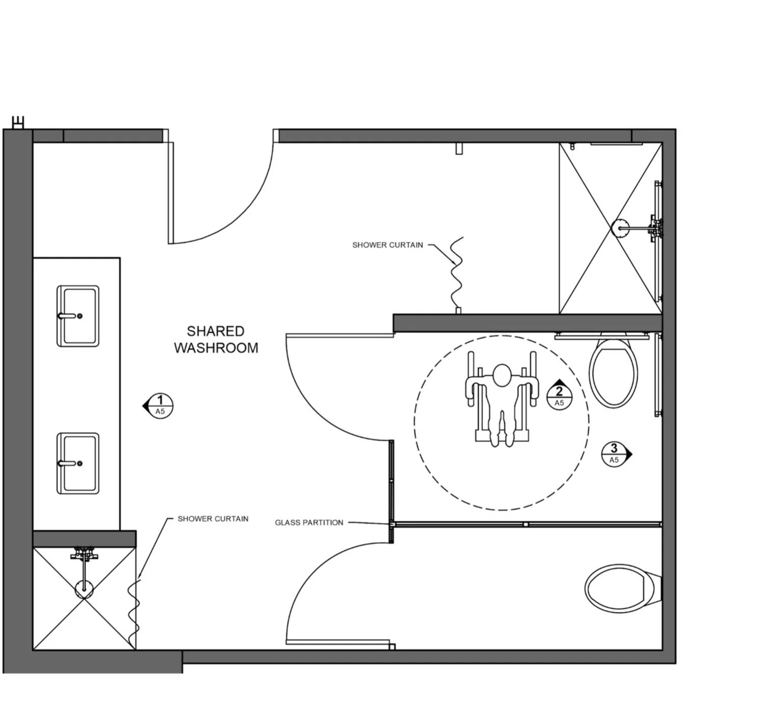
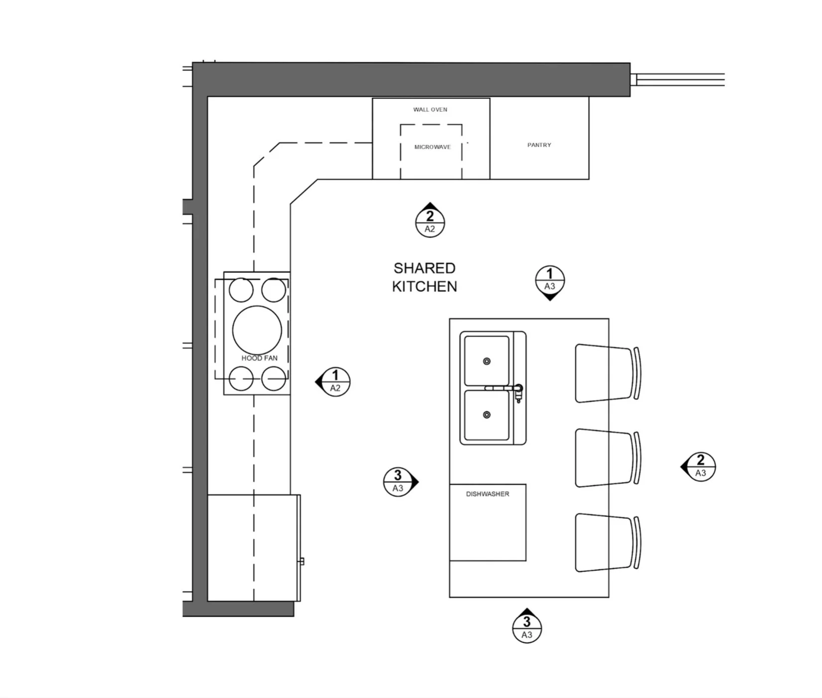
For this project we were asked to design a community residence. My design concept scenario was a dystopian universe, 8 men were captured and forced to live together to power society using spin cycles. Using the spin cycle gives them privileges to use things and do activities. Without cycling they will lose privileges and society will suffer. The future of mankind in their hands. The age demographic for my project is males 25-35, which is why I decided that a futuristic theme for my space is appropriate. Young people are also more cautious about being sustainable and eco-friendly which is why I chose more sustainable products, staying away from using a lot of wood products. I chose green as an accent color in my space as it represents sustainability. I also used mostly neutral colours so that the user group can treat it as a blank canvas and incorporate their own style as well as creating a contrast between the green accents within the space. The key element to my design is streamline which is most prominent in the kitchen island and the bathroom vanity. The vanity does not have any sharp edges and is a smooth and solid piece. The island incorporates interesting geometric angles contesting the traditional box style cabinet and pushing home design norms.

Previous
Previous

CAR DEALERSHIP

Next
Next

DIGITAL RENDERINGS