CAR DEALERSHIP

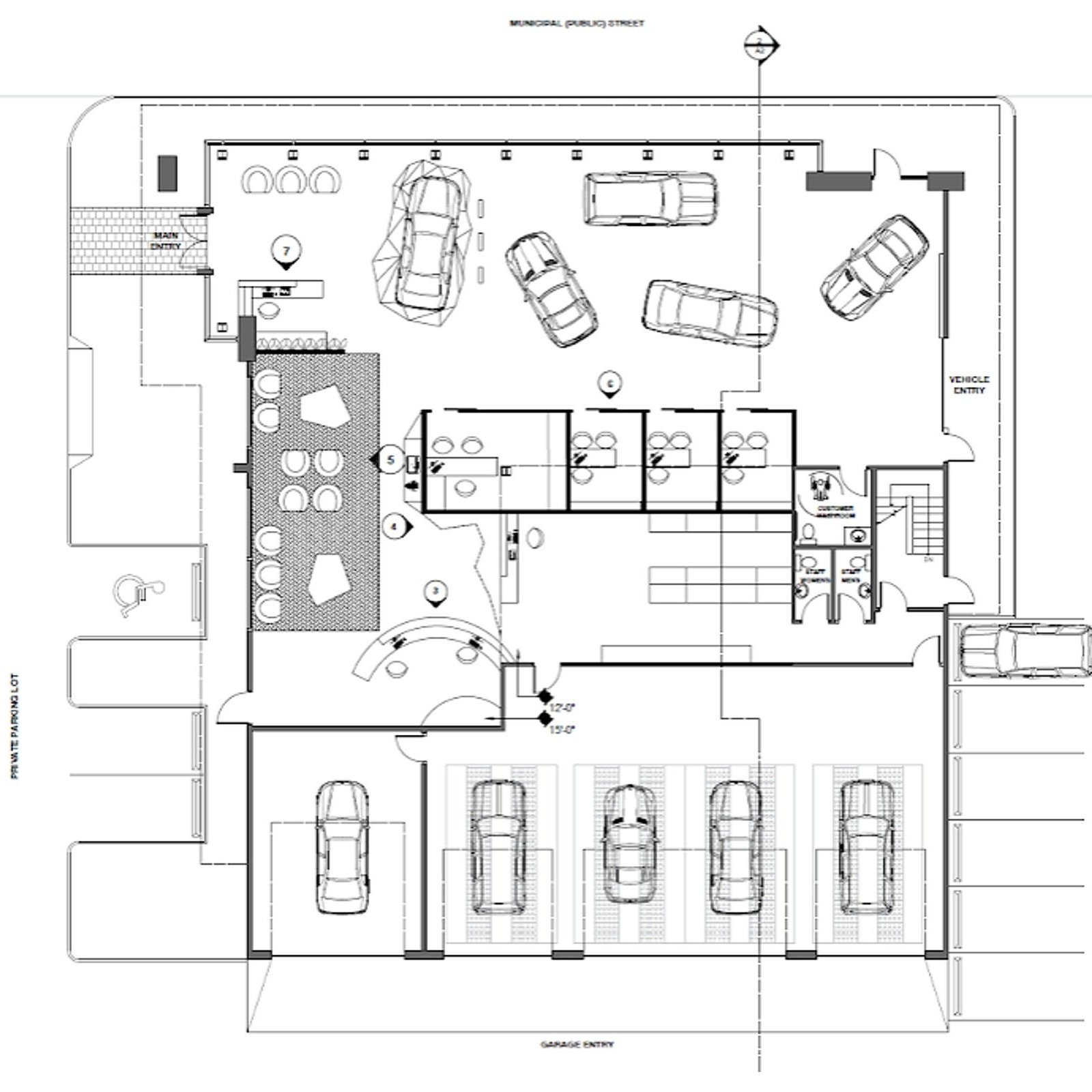
For this project, we were given a car make and asked to design a car dealership that represented the brand. I was given Kia as my car make. Kia’s are your adventure vehicles. They are often advertised in nature somewhere and not usually in cities. They are eco-friendly and fun to drive. In other Kia dealerships, there are natural finishes in the dealership which further ties the company to nature. I chose the Kia Stinger as my feature vehicle for not only its style and performance, but its fuel economy. The Kia Stinger is a hatchback V6 engine. Its an 8 speed automatic with All wheel drive which is great for driving off roads. Kia also brands themselves as fun vehicles to drive which is exactly what the Stinger is. My space is a representation of the eco-friendly and adventure worthy vehicle that Kia is using natural elements and materials in my space. I have also incorporated interesting art pieces in my ceiling to display the fun qualities of Kia.

Previous
Previous

OFFICE

Next
Next

COMMUNITY HOUSING